ГРИНЛОС Ливневая канализация 33 в Санкт-Петербурге
Цена: от 1 903 800 руб.
*Цены могут отличаться от прайса, уточняйте актуальные цены по запросу у менеджера
Технические характеристики
Объем переработки:
2851 м3/сут
Размер Д*Ш*В:
6000*1900*1900 мм
Количество блоков:
1
Объем общий:
32.9 м3
Объем 1 камеры:
32.9 м3
Вес общий:
1406.5 кг
Вес 1 блока:
1406.5 кг
Производительность:
119 м3/час
Производительность:
33 л/сек
Преимущества ГРИНЛОС Ливневая канализация 33
Цилиндрический корпус не деформируется, а наличие обечайки обеспечивает еще большую прочность конструкции.
Комплектация блоками переработки, соответствующими конкретным загрязнениям ливневых стоков на канализируемом объекте.
У ГРИНЛОС Ливневая канализация 33 высокий уровень переработки при относительно компактных габаритах, благодаря блочно-модульному исполнению.
ГРИНЛОС Ливневая канализация 33 выполнена из полипропилена – инертного материала, устойчивого к агрессивным средам.
Особенности ГРИНЛОС Ливневая канализация 33
Ливневая канализация 33 от Гринлос представляет собой модульное очистное сооружение для очистки ливневых стоков, состоящее из 1 блока, объем которого составляет 32,9 м3, вес – 1406,5 кг, в связи с чем для установки станции потребуется применение вспомогательного оборудования.
Размеры 6* 1.9* 1.9 м позволяет существенно сэкономить пространство, не влияя на качество переработки. Производительность станции 33 л/сек позволит справиться с обильными осадками.
Обратите внимание, вы всегда можете обратиться в ГРИНЛОС за изготовлением Ливневой канализации по индивидуальному заказу!
Комплект поставки ГРИНЛОС Ливневая канализация 33
- Корпус «ГРИНЛОС Ливневая канализация 33» (6* 1.9* 1.9 м - 1 шт)
- Крышки
- Кассеты блока осветления
- Коалесцентный фильтр
- Собционные фильтры
Эксплуатационная документация:
- Технический паспорт «ГРИНЛОС Ливневая канализация»
- Сертификат соответствия ГОСТ Р ИСО 9001-2015 (ISO 9001:2005)
- Сертификат соответствия системе ГОСТ Р
- Декларация соответствия ЕАС
Дополнительно можно заказать
- Лестница для обслуживания
- Утепление
- Датчик уровня
- Нестандартные комплектующие
Документация
Принцип работы и внутреннее устройство ГРИНЛОС Ливневая канализация 33
ГРИНЛОС Ливневая канализация 33 применяется в комплексах ливневой канализации промышленных площадок, торговых центров и АЗС, а также с районов жилой застройки, со складов, мостовых переходов и автодорог. Также находит применение при отведении производственных стоков, процесс переработки которых подразумевает отстаивание и фильтрацию на сорбирующих материалах в виде активированного угля.
Технология очистки более сложных стоков, таких как шахтные, карьерные, подтоварные и пр. будет включать в себя дополнительные методы, такие как предварительная реагентная обработка стоков коагулянтами и флокулянтами.
Поверхностные, талые, дождевые и поливомоечные стоки, прошедшие обработку через локальные очистные сооружения, отводятся (самотеком или в напорном режиме) в городскую канализацию, а также на рельеф или в водоем.
Ливневая канализация 33 отвечает всем требованиям и нормам ПДК, которые предъявляют владельцы сетей канализации, водоканалы и природоохранные организации.
Конструктивно данное сооружение для переработки поверхностных вод представляет собой горизонтальную цилиндрическую ёмкость, разделенную внутри перегородками на отдельные блоки. Остальные блоки являются вертикальными или горизонтальными емкостными сооружениями, имеющими в своем составе перегородки, насосное оборудование, трубопроводы с запорной арматурой и лестницами для обслуживания.
В Ливневой канализации ГРИНЛОС на 32.9 м3 применяется классический принцип обработки дождевых и талых вод, заключающийся в поэтапном прохождении стоков через четыре отсека:
- Пескоуловитель
Отвечает за осаждение крупнодисперсных минеральных и органических загрязнений, мусора, а также всплытие пленочных нефтепродуктов.
- Маслобензоуловитель
Это гофрированные пластины из полипропилена (могут быть выполнены в виде букв S или V, быть линейной, точечной, наклонной конфигурации), которые отталкивают воду, но притягивают к себе частицы масла. Образующиеся на поверхности капли затем и поднимаются вверх, формируя плёнку.
Иногда используются другие катализаторы процесса. Например, компрессор, который нагнетает воздух. Масляные загрязнения в результате прилипают к пузырькам и поднимаются наверх. Некоторые модели также обеспечивают вибрацию камеры, что ускоряет работу.
- Тонкослойный блок
Разделяет поток воды по многочисленным наклонным пластинам, в ярусах которых происходит укрупнение и всплытие капель нефтепродуктов, а также сползание и удаление взвешенных веществ в виде осадка по противоточной схеме. Тонкослойный блок занимает площадь в 8 раз меньший, чем при традиционном отстаивании.
- Коалесцентный фильтр
При прохождении через него дождевых вод происходит дальнейшее укрупнение капельных нефтепродуктов, ускоряющее их всплытие. Применение ГРИНЛОС Ливневая канализация 33 каолесцентного фильтра увеличивает продолжительность времени работы сорбционного блока за счет снижения на него нагрузки.
- Сорбционный фильтр
Применяемый здесь многослойный кассетный фильтр состоит из полимерных сорбентов и активированного угля. В слое загрузки происходит обработка воды за счет сорбции эмульгированных и растворенных нефтепродуктов до требуемых значений для сброса в водоем рыбохозяйственного назначения первой категории водопользования.
Схема устройства ливневой канализации ГРИНЛОС
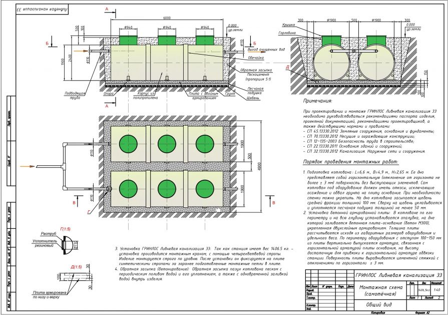
Монтаж ГРИНЛОС Ливневая канализация 33
При проектировании и монтаже ГРИНЛОС Ливневая канализация 33 необходимо руководствоваться рекомендациями паспорта изделия, проектной документацией, рекомендациями проектировщиков, а также действующими нормами и правилами:
- СП 45.13330.2012 Земляные сооружения, основания и фундаменты;
- СП 70.13330.2012 Несущие и ограждающие конструкции;
- СП 12–135–2003 Безопасность труда в строительстве;
- СП 22.13330.2011 Основания зданий и сооружений;
- СП 32.13330.2012 Канализация. Наружные сети и сооружения.
Процесс монтажа включает следующие этапы:
-
Подготовка котлована
Яма под установку ГРИНЛОС Ливневая канализация 33 должна иметь габаритные размеры на 300 мм шире габаритов станции с каждой стороны. Ее дно представляет собой горизонтальную (отклонение от горизонта не более ± 3 мм) поверхность без выступающих элементов. Сам котлован под оборудование должен иметь откосы, исключающие осаждение и обвал грунта на плиту основание. При необходимости, стенки можно укрепить.
-
Установка бетонной армированной плиты
В котловане по его периметру и на всю глубину устанавливается опалубка, на дне которой заливается бетонная плита-основание, укрепленная двухслойным армированием. Толщина плиты рассчитывается исходя из габаритных размеров оборудования и удельного веса. По периметру оборудования с отступом 100–150 мм из плиты вертикально выпускается арматура, связанная с горизонтальной арматурой плиты основания, на высоту достаточную для привязки к горизонтальной арматуре обвязки станции. Поверхность плиты выравнивается цементной стяжкой с отклонениями по горизонтали ± 3 мм.
-
Установка ГРИНЛОС Ливневая канализация 33
Перед началом работ выполняется входной контроль качества, осмотр оборудования с целью обнаружения дефектов, полученных при транспортировке и хранении, с последующим подписанием акта передачи оборудования в монтаж. Так как станция имеет вес 1406.5 кг, установка производится монтажным краном, с помощью четырехветвевой стропы. Изделие монтируется строго по уровню. После установки он фиксируется на плите синтетическими стропами за заранее подготовленные монтажные петли в плите.
-
Обратная засыпка (бетонирование)
При заглублении септика на глубину не более 250 мм от верхнего пластикового горизонтального перекрытия до запланированного уровня земли, в однородных грунтах с низким уровнем вод обратную обсыпку допустимо производить песком смешанным с цементом (марка не ниже М500). Соотношение цемента и песка для обсыпки составляет 1:5. Песчано-цементная засыпка производится послойно, с обязательным трамбованием и проливкой водой каждого слоя. Толщина каждого слоя 300 мм. При условии уровня грунтовых вод выше 1500 мм от уровня земли, при наличии плывуна, скальных грунтов и прочих нестандартных ситуациях, а также в случае заглубления ГРИНЛОС Ливневая канализация 33 более чем на 250 мм песчано-цементную смесь необходимо заменить бетоном. Одновременно с засыпкой ливневой канализации, она заполняется водой. Уровень воды должен превышать уровень засыпки (бетонирования) не менее, чем на 200 мм и не более, чем на 500 мм.
Схемы монтажа:
Остались вопросы? Свяжитесь с нами!
Мы всегда готовы бесплатно проконсультировать по вопросам, связанным с продукцией Гринлос, а также помочь с выбором оптимальной модели септика для решения ваших задач.
