Гринлос Погреб ДТБ 3000*2000*2000 в Санкт-Петербурге
Цена: от 837 200 руб.
Технические характеристики
Форма корпуса:
куб
Вход:
вертикальный
Размер камеры погреба:
3000*2000*2000 мм
Размеры с учетом входа:
4000*2000*3700 мм
Размеры входа:
2000*1000*3700 мм
Объем:
9.6 м3
Вес:
700 кг
Вентиляция:
приточная и вытяжная
Освещение:
есть
Утепление:
возможно
Срок службы:
50 лет
Температура эксплуатации:
минус 25°/плюс 30°
Преимущества Гринлос Погреб ДТБ 3000*2000*2000
Особенности Гринлос Погреб ДТБ 3000*2000*2000
«ГРИНЛОС Погреб» представляет собой герметичное техническое помещение габаритами 3x2x2 м, предназначенное для заглубления в землю. Для удобства и простоты доступа внутрь, вход выполнен вертикально и представляет собой коридор с лестницей. Размеры погреба со входом составляют 4x2x3.7 м. Для дополнительной защиты от промерзания имеется возможность установки второй двери. Погреб поставляется в полной заводской готовности для круглогодичного хранения продуктов питания – овощей, солений и др. домашних запасов.
Материал изготовления погреба – пищевой полипропилен блок-сополимер - экологичный материал, который абсолютно безвреден для продуктов питания, здоровья человека и домашних животных. Полипропилен не поддается коррозии и гниению, обеспечивает герметичность конструкции.
Комплект поставки Гринлос Погреб ДТБ 3000*2000*2000
- Дверь (пароводонепроницаемая), ПП (2 шт.)
- Лестница (1 шт.)
- Полка, ПП (габариты в зависимости от модели погреба) (3 шт.)
- Стойка для полок, профиль ПП 60х60 мм (габариты и количество - в зависимости от модели погреба) (1 шт.)
- Приточный вентиляционный патрубок, профиль ПП (1 шт.)
- Вытяжной вентиляционный патрубок – профиль ПП (1 шт.)
- Дефлектор (зонт вентиляционный) (2 шт.)
- Герметичный ввод для электропроводки Ø25мм (1 шт.)
- Плафон освещения (влагозащищенный фонарь) (1 шт.)
- Выключатель (1 шт.)
- Распределительная коробка (1 шт.)
- Гигрометр/термометр механический (датчик измерения влажности и температуры) (1 шт.)
Дополнительная комплектация:
- Утепление двери
- Муфта
- Гермоввод
Эксплуатационная документация, в том числе:
- Технический паспорт «ГРИНЛОС Погреб»
- Сертификат соответствия ГОСТ Р ИСО 9001-2015 (ISO 9001:2005)
- Сертификат соответствия системе ГОСТ Р
- Декларация соответствия ЕАС
Документация
Устройство Гринлос Погреб ДТБ 3000*2000*2000
Конструкция Гринлос Погреб ДТБ 3000*2000*2000 представляет из себя комнату, выполненную из пластика, габаритные размеры которой 3*2*2 м. Для удобства и простоты доступа внутрь, к основному помещению присоединен коридор с нисходящей лестницей. Вместе со входом размеры погреба составляют 4*2*3.7 м. Вход имеет наземное исполнение, что позволяет спуститься вниз с прямым положением туловища. Рядом с дверью расположен выключатель, отвечающий за освещение. Материалы и конструкция обеспечивают безопасную эксплуатацию изделия на весь срок службы без капитального ремонта.
Для надежной фиксации в грунте Гринлос Погреб ДТБ 3000*2000*2000 оборудован по внешней поверхности стен системой вертикальных ребер жесткости.
Для функциональной эксплуатации Гринлос Погреб ДТБ 3000*2000*2000 оборудован приточной и вытяжной вентиляцией, освещением, полками, лестницей, дверью.
Монтаж Гринлос Погреб ДТБ 3000*2000*2000
При проектировании и монтаже Гринлос Погреб ДТБ 3000*2000*2000 необходимо руководствоваться рекомендациями Технического Паспорта, проектной документацией, рекомендациями проектировщиков, а также действующими нормами и правилами: СП 45.13330.2012 Земляные сооружения, основания и фундаменты; СП 70.13330.2012 Несущие и ограждающие конструкции; СП 12-135-2003 Безопасность труда в строительстве; СП 22.13330.2011 Основания зданий и сооружений; актуальное издание ПУЭ (правила устройства электроустановок). Лица, выполняющие монтаж, должны иметь опыт и необходимую квалификацию, подтвержденную документально, для проведения строительных работ, а также для использования необходимой для проведения работ техники, инструментов и механизмов.
Лица, выполняющие монтаж, должны знать и соблюдать правила техники безопасности и охраны труда. Выполняя строительные работы необходимо использовать средства индивидуальной защиты и строго соблюдать внутренние правила проведения работ на объекте.
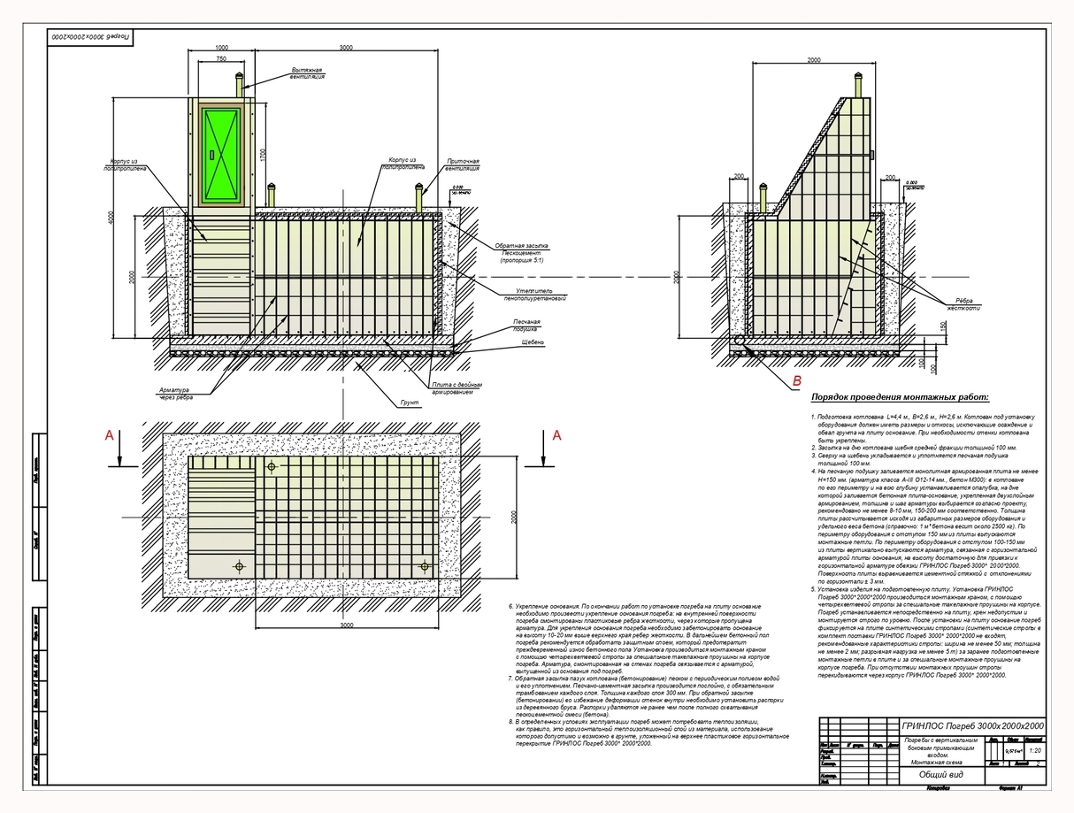
Подготовка котлована для Гринлос Погреб ДТБ 3000*2000*2000
Плита под установку Гринлос Погреб ДТБ 3000*2000*2000 должна иметь габаритные размеры на 200 мм шире габаритов ГРИНЛОС Погреб с вертикальным боковым входом 3*2*2 с каждой стороны. Котлован под установку оборудования должен иметь размеры и откосы, исключающие осаждение и обвал грунта на плиту основание. При необходимости, стенки котлована должны быть укреплены.
Окончательный расчет и задание на подготовку котлована производит специализированная проектная организация.
По окончании работ по устройству котлована выполнить инструментальную проверку соответствия проекту котлована с составлением акта скрытых работ, с приложением фотоотчета.
Установка бетонной армированной плиты
В котловане по его периметру и на всю глубину устанавливается опалубка, на дне которой заливается бетонная плита-основание, укрепленная двухслойным армированием, толщина и шаг арматуры выбирается согласно проекту, рекомендовано не менее 8-10 мм, 150-200 мм соответственно. Толщина плиты рассчитывается исходя из габаритных размеров оборудования и удельного веса бетона (справочно: 1 м3 бетона весит около 2500 кг). По периметру оборудования с отступом 150 мм из плиты выпускаются монтажные петли. По периметру оборудования с отступом 100-150 мм из плиты вертикально выпускаются арматура, связанная с горизонтальной арматурой плиты основания, на высоту достаточную для привязки к горизонтальной арматуре обвязки Гринлос Погреб ДТБ 3000*2000*2000.
Расчет плиты-основания и способа крепления оборудования к ней производит специализированная проектная организация.
Поверхность плиты выравнивается цементной стяжкой с отклонениями по горизонтали ± 3 мм.
По окончании работ по монтажу плиты-основания выполнить инструментальную проверку соответствия проекту проведенных работ с составлением акта скрытых работ, с приложением фотоотчета.
Установка Гринлос Погреб ДТБ 3000*2000*2000
Перед началом работ по установке Гринлос Погреб ДТБ 3000*2000*2000 выполнить входной контроль качества осмотр оборудования с целью обнаружения дефектов, полученных при транспортировке и хранении, с последующим подписанием акта передачи оборудования в монтаж.
Установка Гринлос Погреб ДТБ 3000*2000*2000 производится монтажным краном, с помощью четырехветвевой стропы за специальные такелажные проушины на корпусе Гринлос Погреб ДТБ 3000*2000*2000.
Гринлос Погреб ДТБ 3000*2000*2000 устанавливается непосредственно на плиту, крен недопустим, Гринлос Погреб ДТБ 3000*2000*2000 монтируется строго по уровню.
После установки на плиту основание Гринлос Погреб ДТБ 3000*2000*2000 фиксируется на плите синтетическими стропами (синтетические стропы в комплект поставки Гринлос Погреб ДТБ 3000*2000*2000 не входят, рекомендованные характеристики стропы: ширина не менее 50 мм; толщина не менее 2 мм; разрывная нагрузка не менее 5 т) за заранее подготовленные монтажные петли в плите и за специальные монтажные проушины на корпусе Гринлос Погреб ДТБ 3000*2000*2000, при отсутствии монтажных проушин стропы перекидываются через.
ЗАПРЕЩАЕТСЯ фиксация Гринлос Погреб ДТБ 3000*2000*2000 к плите металлическими тросами или цепями.b>
После установки Гринлос Погреб ДТБ 3000*2000*2000 выполнить выверку оборудования в плане и по высоте с составлением акта скрытых работ, с приложением фотоотчета.
Укрепление основания Гринлос Погреб ДТБ 3000*2000*2000
По окончании работ по установке Гринлос Погреб ДТБ 3000*2000*2000 на плиту основание необходимо произвести укрепление основания Гринлос Погреб ДТБ 3000*2000*2000.
На внутренней поверхности Гринлос Погреб ДТБ 3000*2000*2000 смонтированы пластиковые ребра жесткости, через которые пропущена арматура, для укрепления основания Гринлос Погреб ДТБ 3000*2000*2000 необходимо забетонировать основание Гринлос Погреб ДТБ 3000*2000*20000 на высоту 30-50 мм выше верхнего края ребер жесткости. В дальнейшем бетонный пол Гринлос Погреб ДТБ 3000*2000*2000 рекомендуется обработать защитным слоем, который предотвратит преждевременный износ бетонного пола Установка Гринлос Погреб ДТБ 3000*2000*2000 производится монтажным краном, с помощью четырехветвевой стропы за специальные такелажные проушины на корпусе Гринлос Погреб ДТБ 3000*2000*2000.
Арматура, смонтированная на стенах Гринлос Погреб ДТБ 3000*2000*2000 связывается с арматурой, выпущенной из основания под Гринлос Погреб ДТБ 3000*2000*2000.
Обратная засыпка (бетонирование) Гринлос Погреб ДТБ 3000*2000*2000
При заглублении Гринлос Погреб ДТБ 3000*2000*2000 на глубину не более 250 мм от верхнего пластикового горизонтального перекрытия до запланированного после проведения финишного благоустройства, уровня земли, в однородных спокойных грунтах с низким уровнем грунтовых вод, обратную обсыпку допустимо производить песком без твердых крупных включений смешанным с цементом. Соотношение цемента и песка для обсыпки Гринлос Погреб ДТБ 3000*2000*2000 составляет 1:5.
Песчано-цементная засыпка производится послойно, с обязательным трамбованием каждого слоя. Толщина каждого слоя 300 мм.
При условии уровня грунтовых вод выше 1500 мм от уровня земли, при наличии плывуна, при монтаже в скальных грунтах и прочих нестандартных ситуациях, а также при монтаже Гринлос Погреб ДТБ 3000*2000*2000 под зданиями, сооружениями, любыми постройками и при организации пешеходной или проезжей зоны над Гринлос Погреб ДТБ 3000*2000*2000, в случае заглубления Гринлос Погреб ДТБ 3000*2000*2000 более чем на 250 мм от верхнего пластикового горизонтального перекрытия до запланированного после проведения финишного благоустройства уровня земли песчано-цементную смесь не-обходимо заменить бетоном, а непосредственно над верхним пластиковым горизонтальным перекрытием Гринлос Погреб ДТБ 3000*2000*2000 необходимо смонтировать разгрузочную плиту, опирающуюся на бетонные стенки, возведенные по периметру устанавливаемого Гринлос Погреб ДТБ 3000*2000*2000, опирающиеся на выпуск плиты основания. Расчет толщины и конструкции стен и разгрузочной плиты производит специализированная проектная организация исходя из предполагаемой нагрузки.
По факту выполнения работ выполнить инструментальную проверку соответствия проекту с составлением акта скрытых работ, с приложением фотоотчета.
Теплоизоляция Гринлос Погреб ДТБ 3000*2000*2000
В определенных условиях эксплуатации Гринлос Погреб ДТБ 3000*2000*2000 может потребовать теплоизоляции, окончательный расчет способа и материалов для теплоизоляции Гринлос Погреб ДТБ 3000*2000*2000 осуществляет проектная организация, как правило, это горизонтальный теплоизоляционный слой из материала, использование которого допустимо и возможно в грунте, уложенный на верхнее пластиковое горизонтальное перекрытие Гринлос Погреб ДТБ 3000*2000*2000.
Схемы монтажа:
Рекомендации по эксплуатации пластикового погреба
В погребе Гринлос Погреб ДТБ 3000*2000*2000 реализована естественная вентиляция погреба, состоящая из вытяжного (начинается под потолком) и приточного (начинается у самого пола) воздуховодов. Данная конструкция не позволяет влаге и различным опасным газам задерживаться в помещении. В итоге, фруктам и овощам обеспечивается требуемое дыхание и надежная защита от гниения. Для эффективной работы вентиляции необходимо соблюдать ряд основных правил монтажа и эксплуатации:
- Высота вентиляционной вытяжной трубы должна быть выше уровня крыши или конька кровли, лишь тогда вывод отработанного воздуха будет эффективным. Выход воздуховода обязательно должен быть защищен козырьком (устанавливается на заводе) или дефлектором.
- При монтаже погреба необходимо соблюдать перепад высот между приточной и вытяжной трубой: разница должна составлять не менее 1000 мм. Данный перепад высот обеспечивает естественную вентиляцию – «тягу» внутри погреба.
- По возможности приточная и вытяжная трубы не должны иметь изгибов (поворотов) для обеспечения оптимального микроклимата и естественной вентиляции.
- Зимой при сильных холодах (температура ниже – 25 ºC) и летом в жару (температура выше +25 ºC) необходимо ограничить приток холодного и теплого воздуха (закрыть приточное вентиляционное отверстие). Выполнение данных простых правил позволит предотвратить вероятность опасного скопления вредных газов, а также исключить вероятность появления конденсата.
Фотогалерея выполненных монтажей
Остались вопросы? Свяжитесь с нами!
Мы всегда готовы бесплатно проконсультировать по вопросам, связанным с продукцией Гринлос, а также помочь с выбором оптимальной модели септика для решения ваших задач.

